
▲完工實景 ©源于·云蘭整裝王
本套住宅設計以數學大師笛卡爾的坐標系為靈感,將居住空間巧妙地劃分為四大核心要素,分別體現傳統風水、寵物友好、空間開放性以及人文關懷。
在這個設計中,“家”被賦予了數學坐標系中“原點”的象征意義,它是生活的核心,是所有軌跡的起始和終點。在這里,每個家庭成員都能找到屬于自己的位置,共同編織出生活的多維度畫卷。
1、設計尊重并融入了傳統風水的原則,通過精心的空間布局和自然光線的引入,確保每個角落都能帶來正能量和舒適感;
2、開放空間設計,開放式廚房、通透的客廳+靈活的隔斷,讓家庭成員之間的互動更加自然流暢;
3、特別設計了一系列寵物友好的元素,如低矮的窗臺、寵物專屬的活動區域和易于清潔的材料,讓寵物成為家庭和諧的一部分;
4、整體設計不僅關注物理空間,更注重居住者的情感需求。通過溫暖的色調、舒適的家具和個性化的裝飾,打造出一個充滿愛和關懷的家。
圖 賞

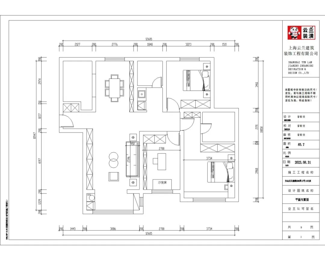
▲平面布置圖


黑色條紋裝飾電視墻,下方擺長形木質邊桌。選用2400mm寬的巖板作為電視背景墻,頂部巧妙布置三個射燈,既突出了巖板質感,又增添了現代感。

客戶追求的是一個既實用又具有裝飾效果的餐廳空間。我們根據這一需求,設計了一個寬敞的餐廳,利用大飄窗引入自然光線,營造明亮的用餐環境。

▲完工實景 ©源于·云蘭整裝王
靠墻定制了一排裝飾柜,既增加了儲物空間,又通過原木色框架、極窄邊框玻璃門和白色木門板的巧妙搭配,增添了裝飾性。

▲完工實景 ©源于·云蘭整裝王

▲完工實景 ©源于·云蘭整裝王
客戶希望主臥能保持原有的溫馨氛圍,同時展現出現代簡約風格。我們保留了主臥的實木地板,選擇深色床和衣柜門板與之搭配,既保持了空間的連貫性,又避免了突兀感。

▲完工實景 ©源于·云蘭整裝王
安裝了圓形吊扇燈,與方形空間形成對比,體現了“方中有圓,圓中有方”的設計理念。整體造型以簡潔平板為主,易于清潔維護,彰顯了簡約風格的隨意與不拘一格,滿足了客戶對主臥舒適與時尚的追求。

▲完工實景 ©源于·云蘭整裝王

▲完工實景 ©源于·云蘭整裝王
依據客戶的辦公需求,我們設計了獨立的書房空間。地板采用了深色木質材料,墻壁上安裝了多個白色的儲物柜,在房間的一側,設計了一個大型的黑色開門書柜,滿足書籍收納需求。

▲完工實景 ©源于·云蘭整裝王
房間中央擺放著一張長條形的桌子,天花板上懸掛著一個圓形的吊燈,為整個房間增添了一抹浪漫的氣息。半透明紗簾,既保證了空間的私密性,又巧妙地引入了外界的自然景色,讓整個房間顯得更加通透和舒適。



濕區僅放置必要的馬桶和洗手臺,同時增加了一排儲物柜,以提升收納功能。黑色邊框長虹玻璃門的設計,既保證了隱私,又讓整個空間顯得協調統一,大氣而時尚。

▲完工實景 ©源于·云蘭整裝王
進門玄關處做簡約定制柜,上面可以私藏收納,中間鏤空可放置挎包、鑰匙等,底部鏤空處與常規鞋等高方便換室內拖鞋,非常實用。

▲完工實景 ©源于·云蘭整裝王
陽臺處我們采用了多功能設計,讓原本單調的空間有了收納、洗衣、晾曬、梳洗、觀景、閱讀等多種功能。右手邊定制柜體做了當下很流行的洗衣柜組合,洗衣機旁邊做了小洗手池,利用了陽臺的每一寸空間,讓陽臺成為了一個多功能的生活區域,供居住者享受家居恬靜時光。
云蘭整裝王,專做上海家裝23年——上海家裝口碑領先、回頭客領先品牌,現回頭客及轉介紹業務已占業務總量的4成以上。一直堅持免費上門量房,免費360°效果設計,免費清單式報價......好而不貴,找云蘭整裝王,真靠譜!
靠譜裝新家熱線
4000-87-3339
掃一掃,有驚喜


您家舒適美麗家 要花多少錢?
3套設計方案免費一鍵獲取您家裝修報價
Copyright ? 2026 YUNLAN-DECORATION. ALL RIGHTS RESERVER