男業主是一位IT行業的高級管理人員,家中有四口人,有兩個活潑的孩子,一個男孩和一個女孩。因為職業的關系,他對智慧家居有著濃厚的興趣,希望在裝修中能夠加入更多智能元素,使得家居生活更加便捷、舒適和安全。
我們根據客戶的喜好和需求,采用極簡風格進行室內設計,并將智能家居系統融入裝修之中。同時,為每個專屬區域提供了個性化定制,實現了家庭每一位成員的新居愿望。
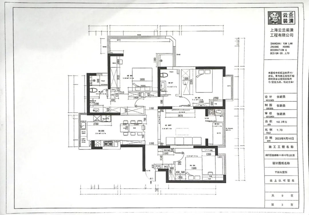
1、針對業主IT背景,安裝智慧家居系統,包括中央空調、地暖、軟水和凈水系統,實現手機控制家中設備,提升便捷性;
2、根據家庭成員需求定制個性空間,主臥配備男主辦公區、女主梳妝臺和衣柜,做女兒房配置大飄窗和氛圍燈,兒子房設計懸挑寫字臺和書柜,確保舒適便利;
3、客廳設計體現極簡風格特色,使用米色皮質沙發和黑色電視柜,搭配精致燈光和裝飾畫,營造溫馨高雅氛圍;
4、玄關處做簡約定制柜,以白色和黑色為主色調,營造出簡潔而時尚的氛圍,給予入戶高級觀感......
圖 賞
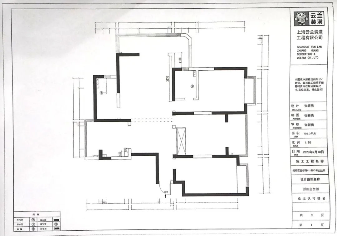
▲原始戶型圖
▲完工實拍圖 ©源于·云蘭整裝王
極簡風格不僅帶來視覺上的享受,更能通過減少不必要的裝飾和物品,提供更多的活動空間和儲物空間。在客廳設計上,我們以白色和淺灰色為主色調,搭配米色皮質沙發、方形石膏板吊頂搭配成品石膏線燈帶,營造出一個明亮、寬敞且現代的室內空間。
▲完工實拍圖 ©源于·云蘭整裝王
在燈光設計上,我們豐富了頂面燈光,包括吸頂主燈、明裝磁吸軌道燈、燈帶和射燈,以及沙發背景上的裝飾掛畫,以營造出溫馨高雅的居住氛圍。
▲完工實拍圖 ©源于·云蘭整裝王
此外,我們采用了去茶幾化設計,以簡潔時尚的現代極簡風格,讓空間顯得更加方正大氣。

▲完工實拍圖 ©源于·云蘭整裝王
餐廳空間比較方正,整面餐邊柜和餐桌顏色呼應,黑色極窄邊框玻璃門增添了夢幻感,頂面曲線吊燈成為空間的亮點。
▲完工實拍圖 ©源于·云蘭整裝王
▲完工實拍圖 ©源于·云蘭整裝王
主臥的設計上,我們打通了與東陽臺的隔斷,使得空間更加寬敞明亮。我們為客戶設計了書桌、梳妝臺和大衣柜,提供了充足的儲物空間,同時灰色調的床單、地板和柜子讓整個空間顯得更為明亮和寬敞。
▲完工實拍圖 ©源于·云蘭整裝王
在女主人的衣帽間的設計上,我們采用了開放式布局,右邊為展示柜和鞋柜,左邊為衣柜,提供了豐富的儲物空間,同時黑色門套與白色平板門的設計既簡潔又方便清理。


女兒房的設計簡潔實用,大飄窗的設計讓空間感得到延伸,暗藏的氛圍燈和灰色地板、黑色踢腳板與白色墻面的搭配,形成了有序的明暗對比。

▲完工實拍圖 ©源于·云蘭整裝王
男孩房間的設計同樣考慮到了空間的利用和收納需求。我們利用大飄窗設計了一個懸挑寫字臺,并在對面設置了一排書柜,有效收納了書籍。

▲完工實拍圖 ©源于·云蘭整裝王
廚房設計得既整潔又實用,深灰色的上柜下柜與白色臺面的搭配,營造出一種溫馨而明亮的氛圍。櫥柜上方的抽屜和柜子提供了充足的儲物空間,使得廚房物品能夠有序擺放,方便取用。
▲完工實拍圖 ©源于·云蘭整裝王
廚房U型廚柜,開放式,水池邊上是14套洗碗機,中央軟水和凈水都在水池下方,淺灰色雙門冰箱,讓廚房空間顏色明暗有序,從深到淺,色調很豐富。

▲完工實拍圖 ©源于·云蘭整裝王

▲完工實拍圖 ©源于·云蘭整裝王
▲完工實拍圖 ©源于·云蘭整裝王


這套現代極簡風裝修項目,我們不僅滿足了業主的審美喜好及所有功能需求,而且在細節處以求提升生活的品質和格調。如果你也喜歡這種裝修風格,請聯系我們,建面66平11萬一口價真全包,裝修好而不貴的舒適美麗家。
云蘭整裝王專做上海家裝22年,現回頭客及轉介紹業務已占業務總量的4成以上。上海家裝回頭客領先,上海家裝客戶滿意度領先,雙領先口碑品牌。一直堅持免費上門量房,免費360°效果設計,免費清單式報價......10免10包12不限。好而不貴,找云蘭整裝王,真靠譜!
靠譜裝新家熱線
4000-87-3339
掃一掃,有驚喜


您家舒適美麗家 要花多少錢?
3套設計方案免費一鍵獲取您家裝修報價
Copyright ? 2026 YUNLAN-DECORATION. ALL RIGHTS RESERVER