▲完工實拍圖 ©源于·云蘭整裝王
這是一套位于嘉定的110㎡現代復式住宅,業主是一對退休夫婦。他們希望房屋的裝修要簡單素雅,同時要滿足日常生活的便利性和舒適性。由于女兒只是偶爾居住,因此在空間布局上需要兼顧偶爾居住和日常收納展示的功能。
為滿足客戶需求我們以現代簡約風格為基礎,根據業主需求對各區域空間進行私人定制,打造出業主夫婦的幸福居室。
1、客餐廳一體設計,并增加定制餐邊柜,不僅有效擴大了空間感,還增加了儲物容量,使整個空間更加開闊、大氣;
2、主臥采用實木復合地板搭配灰色床,床頭僅設置床頭柜,避免了衣帽柜的擁擠感,使空間更顯寬敞;
3、次臥設計為榻榻米一體柜加裝飾柜,既滿足了女兒偶爾居住的需要,又能作為儲物和展示裝飾物的空間,實現了空間的多功能利用;
4、廚房采用U型櫥柜布局,冰箱外置,配置了方太電器等全套廚房設備,滿足了業主制作各種美食的需求......
圖 賞
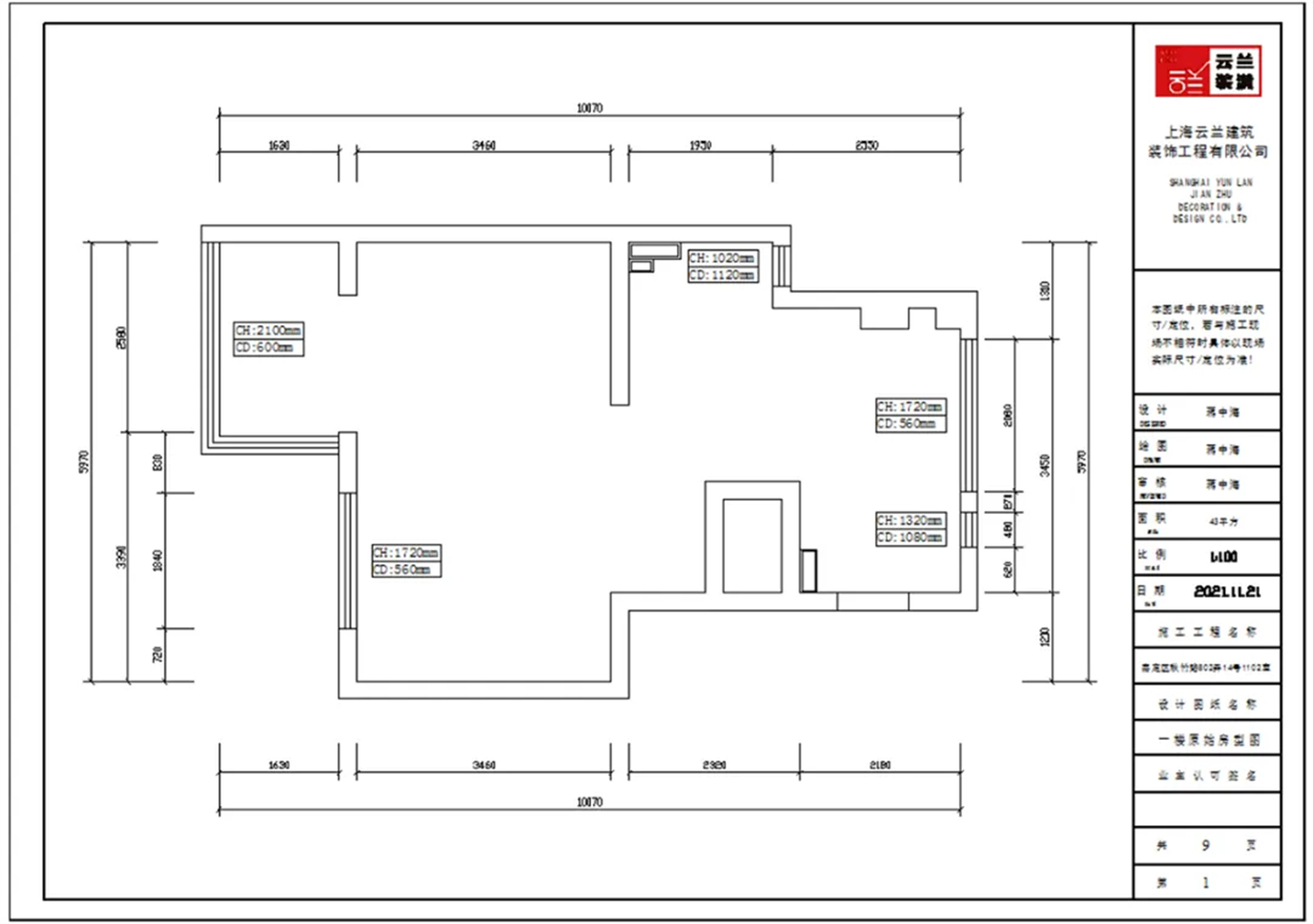
▲原始戶型圖
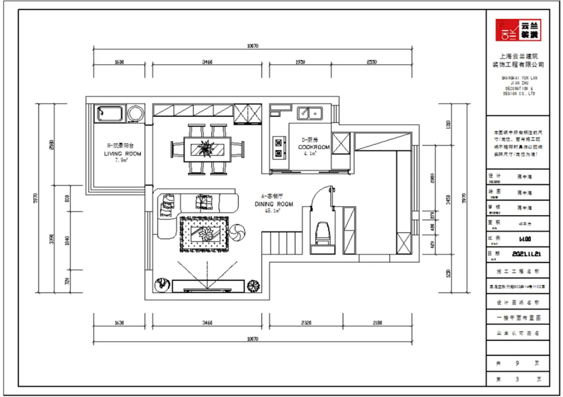
▲平面布置圖
▲完工實拍圖 ©源于·云蘭整裝王
▲完工實拍圖 ©源于·云蘭整裝王
▲完工實拍圖 ©源于·云蘭整裝王
▲完工實拍圖 ©源于·云蘭整裝王
▲完工實拍圖 ©源于·云蘭整裝王
▲完工實拍圖 ©源于·云蘭整裝王
▲完工實拍圖 ©源于·云蘭整裝王
▲完工實拍圖 ©源于·云蘭整裝王
這套復式房翻新項目,我們不僅滿足了業主的審美喜好及所有功能需求,而且通過設計改造提升家居生活的溫度和舒適度。如果你也有房子裝修,請聯系我們,建面66平11萬一口價32項真全包,裝修好而不貴的舒適美麗家。
云蘭整裝王專做上海家裝22年,現回頭客及轉介紹業務已占業務總量的4成以上。上海家裝回頭客領先,上海家裝客戶滿意度領先,雙領先口碑品牌。一直堅持免費上門量房,免費360°效果設計,免費清單報價......10免10包12不限。好而不貴,找云蘭整裝王,真靠譜!
靠譜裝新家熱線
4000-87-3339
掃一掃,有驚喜


您家舒適美麗家 要花多少錢?
3套設計方案免費一鍵獲取您家裝修報價
Copyright ? 2026 YUNLAN-DECORATION. ALL RIGHTS RESERVER