
▲完工實拍圖 ©源于·云蘭整裝王
| 裝修主材 | |
|
客餐廚衛瓷磚 |
諾貝爾玻化磚 |
| 乳膠漆 |
多樂士乳膠漆 |
| 廚房配置 | 方太電器 |
|
衛生間配置 |
法恩莎潔具 |
這套位于嘉定區沈徐路的高層住宅,擁有100平方米的寬敞空間。二室二廳一衛的布局,前方俯瞰休閑廣場,后方緊鄰地鐵站,真交通便利視野開闊。業主是設計師鄰家姐姐,平日時常接觸兩人很投緣,所以對設計師很信任。作為房產經理,她對家居裝修有著較為專業的要求和品味。衣帽間要求根據自己的生活習慣定制,裝修建材要求品牌和環保。
通過精心的選材和設計,我們為居室主人打造了一個既簡約又不失精致感的居住空間:
1、客廳雙眼皮吊頂和滿墻電視柜的設計,提升家居空間感及品質;
2、餐廳與廚房相連就餐互動增強,三聯動推拉門增強室內光感;
3、L型衣柜與轉角書桌的巧妙結合,提升儲物空間,增加空間功能;
圖 賞

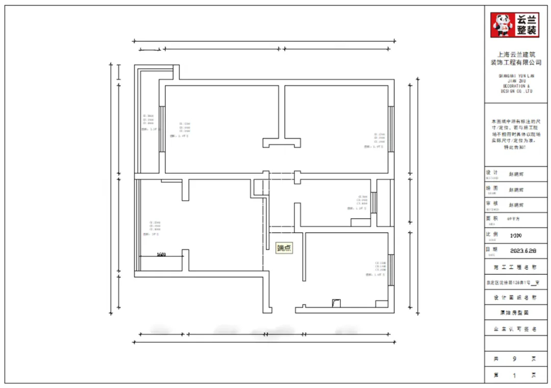
▲原始戶型圖

▲平面布置圖

▲完工實拍圖 ©源于·云蘭整裝王
在客廳的裝修上,我們采用了淺灰色涂料作為沙發背景,配以米黃色皮質沙發,營造出高端而不失溫馨的氛圍。

▲完工實拍圖 ©源于·云蘭整裝王
雙眼皮吊頂和滿墻電視柜的設計,不僅提升了空間感,更彰顯了現代家居的精致與實用。

▲完工實拍圖 ©源于·云蘭整裝王

▲完工實拍圖 ©源于·云蘭整裝王
業主希望餐廳寬敞且具有實用性。我們采用三聯動推拉門,巧妙地將餐廳與廚房相連,同時嵌入式冰箱的設計,既實用又不失美觀,巖板餐桌與原木色框架的搭配,為用餐空間增添了一抹自然與溫馨。

▲完工實拍圖 ©源于·云蘭整裝王

▲完工實拍圖 ©源于·云蘭整裝王

▲完工實拍圖 ©源于·云蘭整裝王
雙眼皮石膏板的簡潔線條,以及L型衣柜與轉角書桌的巧妙結合,既提升了儲物空間,也增加了空間的功能性。

▲完工實拍圖 ©源于·云蘭整裝王
兒童房上下床的設計兩孩的居住問題,床下的置物柜滿足了玩具收納。

▲完工實拍圖 ©源于·云蘭整裝王
良好的采光與寬敞的空間,為孩子們提供了一個充滿想象的成長環境

▲完工實拍圖 ©源于·云蘭整裝王

▲完工實拍圖 ©源于·云蘭整裝王
白色吊頂與米色櫥柜的和諧搭配,以及石英石臺面的耐用性,都體現了廚房的高端與實用。

▲完工實拍圖 ©源于·云蘭整裝王
衛生間做干濕分離的設計,提升了衛生間的使用效率。1米長的洗手臺、智能馬桶,以及墻地一體磚和鈦合金移門的使用,都提升家居質感并實用方便品質生活。

▲完工實拍圖 ©源于·云蘭整裝王

▲完工實拍圖 ©源于·云蘭整裝王
這套翻新房裝修項目,我們不僅滿足了業主的審美喜好及所有功能需求,而且通過設計改造提升家居生活的溫度和舒適度。如果你也有房子裝修,請聯系我們,建面66㎡11萬一口價真全包,裝修好而不貴的舒適美麗家。
靠譜裝新家熱線
4000-87-3339
掃一掃,有驚喜


您家舒適美麗家 要花多少錢?
3套設計方案免費一鍵獲取您家裝修報價
Copyright ? 2026 YUNLAN-DECORATION. ALL RIGHTS RESERVER