在上海裝修市場中,許多業主在考慮家庭裝修時,常常會面臨一個選擇:是找裝修公司進行設計,還是聘請獨立設計師。這種不確定性往往源于對兩者服務模式和效果的不同理解。通過分析云蘭整裝王的免費設計服務的特點,可以幫助我們對自己的選擇有更清晰的認識。
免費設計的優勢
1、專業測量與CAD圖紙制作:
云蘭整裝王提供免費上門量房服務,使用專業工具對現場戶型進行精確測量,并制作CAD圖紙。這種服務不僅專業,而且能夠確保設計的基礎數據準確無誤。
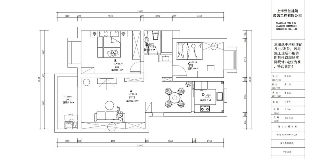
▲平面布置圖 ©源于·云蘭整裝王
2、全面的效果圖展示:
除了基本的CAD圖紙,云蘭整裝王還提供各個房間的效果圖,包括二維和三維效果圖。這些效果圖能夠幫助業主更直觀地理解裝修后的效果,而不僅僅是依賴于平面圖。
▲設計效果圖 ©源于·云蘭整裝王
3、360°效果圖:
云蘭整裝王提供的360°效果圖可以全方位展示房間的每一個角落,為客戶提供沉浸式的體驗,這種服務在獨立設計師中可能難以實現。
▲360°效果圖 ©源于·云蘭整裝王
4、清單式報價:
云蘭整裝王的清單報價根據量房后的數據和客戶選擇的裝修材料、設計元素等,列出詳細的報價單。這種透明的報價方式有助于業主了解每一筆費用的去向,避免在裝修過程中出現額外的開支。
▲項目和材料清單 ©源于·云蘭整裝王
5、溝通設計不限次數:
云蘭整裝王的設計服務不限次數,確保業主在任何時候、任何需求都能得到及時的響應。這種靈活性是獨立設計師難以提供的。
6、保障客戶利益:
云蘭整裝承諾,如果設計預算不滿意,訂金多退500元;裝修不滿意,當天退你款。這種保障措施在獨立設計師的服務中不常見。
獨立設計師的局限性
1、成本較高:獨立設計師的設計費用可能較高,且業主需要自己協調施工隊伍和材料供應商,增加了額外的協調成本。
2、服務不全面:獨立設計師主要提供設計服務,可能缺乏全面的施工支持和后續服務。
3、風險較高:與裝修公司相比,獨立設計師可能沒有完善的質量保證和售后服務,增加了裝修過程中的風險。
不過,裝修公司免費上門量房設計縱有千般好但也要小心上海裝修市場的免費上門量房套路。如:一些裝修公司可能會要求業主支付一定數額的定金,但在業主最終未選擇該公司時,定金可能不會退還,或者只退還部分。云蘭整裝王:若設計預算不滿意訂金多退500、裝修不滿意當天退你款。實現真正免費上門量房設計,保障客戶最大利益。
云蘭整裝王精做上海家裝21年,現回頭客及轉介紹業務已占業務總量的4成以上。上海家裝回頭客領先,上海家裝客戶滿意度領先,雙領先口碑品牌。一直堅持免費上門量房,免費360°效果設計,免費清單報價......10免10包12不限。好而不貴找云蘭整裝,真靠譜!
靠譜整裝咨詢熱線:
4000-87-3339
靠譜裝新家熱線
4000-87-3339
掃一掃,有驚喜


您家舒適美麗家 要花多少錢?
3套設計方案免費一鍵獲取您家裝修報價
Copyright ? 2026 YUNLAN-DECORATION. ALL RIGHTS RESERVER