
▲完工實拍圖 ©源于·云蘭整裝王
| 裝修主材 | |
|
客餐廚地面磚 |
諾貝爾瓷磚 |
| 廚房墻面 |
諾貝爾?;u |
| 乳膠漆 | 多樂士金裝五合一 |
|
衛生間墻面 |
諾貝爾釉面磚 |
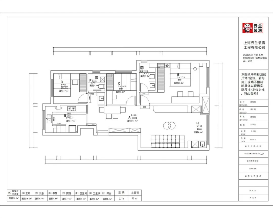
這套房子原為三室二廳布局,是一套100平米的現代風格住宅,業主為一對30多歲的新婚白領夫婦居住。女主人偏愛淺綠色調,追求明亮的居住環境。
1、客廳軟裝簡約設計,背景墻以淺綠色為主;
2、餐廳設有大餐桌,沙發保留原有布藝款式,滿足客戶審美;
3、衛生間采用高飽和度的純色瓷磚,體現現代時尚質感;
4、玄關柜與客廳柜融為一體,合理利用了戶型空間......
圖 賞

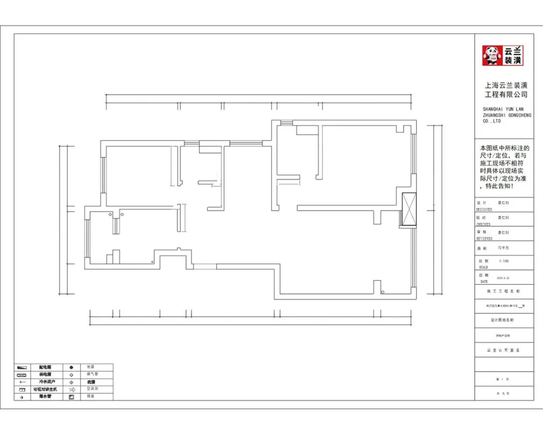
▲原始戶型圖

▲完工實拍圖 ©源于·云蘭整裝王

▲完工實拍圖 ©源于·云蘭整裝王
淺綠色沙發與墻面色彩相呼應,搭配黑白格紋抱枕,時尚而不失雅致。

▲完工實拍圖 ©源于·云蘭整裝王
白色書架和陳列柜實用美觀,可擺放書籍和裝飾品,提升空間功能性。

▲完工實拍圖 ©源于·云蘭整裝王
角落餐廳設計巧妙,既節省空間又實用,滿足現有家庭成員用餐需求,同時享受大客廳的寬闊視野和氛圍。

▲完工實拍圖 ©源于·云蘭整裝王
餐邊柜設計尤為實用,不僅提供了充足的儲物空間,方便餐具、書籍和裝飾品的收納,還保持了餐桌的整潔與美觀。


▲完工實拍圖 ©源于·云蘭整裝王
臥室墻面同樣采用淺綠色,為空間帶來清新時尚感,與灰色床頭板和米色被褥形成和諧搭配。



▲完工實拍圖 ©源于·云蘭整裝王
廚房L型布局不僅優化了空間利用,更使烹飪流程順暢無阻,提升了廚房的實用價值。

上下柜的清新配色,特別是淺藍色的亞克力下柜與白色上柜的搭配,為空間注入了明亮與活力。

▲完工實拍圖 ©源于·云蘭整裝王
衛生間做了干濕分離,干區白色洗手臺與淺綠色瓷磚的搭配,不僅美觀,更易于清潔,保持浴室的整潔。

▲完工實拍圖 ©源于·云蘭整裝王
濕區感墻面和地面鋪設了白色與綠色相間的瓷磚,應馬桶的設計提升了用戶體驗,通過感應自動沖水,既衛生又便利。

▲完工實拍圖 ©源于·云蘭整裝王
玄關區域巧妙地將玄關柜與客廳柜融為一體,不僅合理利用了戶型空間,更在視覺上營造出一種寬敞明亮的氛圍。

▲完工實拍圖 ©源于·云蘭整裝王
白色柜體搭配透明玻璃門,既美觀又實用,方便存取物品。開放式的展示格子增加了視覺層次感,同時滿足了儲物與展示的雙重需求。
這套翻新裝修項目,我們不僅滿足了業主的審美喜好及所有功能需求,而且通過設計改造提升家的溫度和舒適度。如果你也有房子裝修,請聯系我們,建面66㎡11萬一口價真全包,裝修好而不貴的舒適美麗家。
云蘭整裝王精做上海家裝21年,現回頭客及轉介紹業務已占業務總量的4成以上。上海家裝回頭客領先,上海家裝客戶滿意度領先,雙領先口碑品牌。一直堅持免費上門量房,免費360°效果設計,免費清單報價......10免10包12不限。好而不貴,找云蘭整裝王,真靠譜!
靠譜裝新家熱線
4000-87-3339
掃一掃,有驚喜


您家舒適美麗家 要花多少錢?
3套設計方案免費一鍵獲取您家裝修報價
Copyright ? 2026 YUNLAN-DECORATION. ALL RIGHTS RESERVER