▲完工實拍圖 ©源于·云蘭整裝
戶型解析:
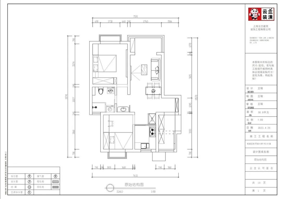
本套房子是位于繁華街區的二室一廳一衛,社區綜合服務設施非常完善,居民生活質量較高。我們根據業主及家人的需求,量身設計改造為提升家居生活品質的居室。
1、電視區域打造通頂玻璃柜,增加了空間層次感,提升儲物能力;
2、角落餐廳設計,定制“流光”巖板餐桌,光影舞動,增添用餐氛圍感;
3、U型布局廚房,優化烹飪操作流程,利用有限空間,提高廚房使用效率......
裝修主材:
| 客餐廳地面 | 菲林格爾地板 |
| 墻面乳膠漆 | 多樂士環保漆 |
| 廚房配置 | 方太電器 |
| 衛生間配置 | 法恩莎潔具 |
業主雙方都是國家公務人員,高知識分子的背景使得他們對于居住環境有著更為理性和感性的需求。我們采用簡約的風格對空間進行設計改造,主臥為業主夫妻居住,次臥則作為兒子偶爾來訪時的住所。在客廳、臥室等空間,均未采用復雜的背景墻設計,而是貫徹了“輕硬裝、重軟裝”的理念,讓整體設計簡約而不失優雅,流暢而不浮夸。
圖 賞
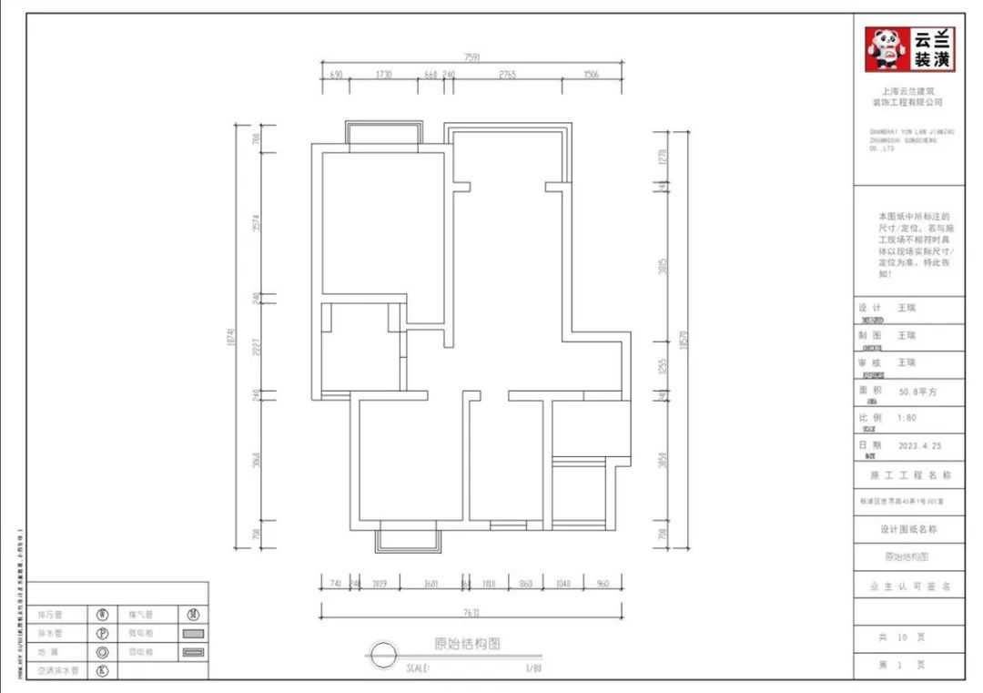
▲原始戶型圖
▲平面布置圖
▲完工實拍圖 ©源于·云蘭整裝
在設計客廳時,為了滿足業主對于舒適與美觀的雙重需求,我們精心挑選了多樂士馬蹄鐵乳膠漆為墻面著色,其優雅的質感為客廳奠定了溫馨而現代的基礎。
▲完工實拍圖 ©源于·云蘭整裝
配上淺灰色的皮質沙發,不僅提升了空間的品質感,更與整體風格完美融合,營造出一種輕松愉悅的居住氛圍。
▲完工實拍圖 ©源于·云蘭整裝
電視區域我們巧妙地在一側打造了一個通頂的玻璃柜,這樣的設計不僅裝飾了墻角,增加了空間的層次感,同時也提供了實用的儲物空間。
▲完工實拍圖 ©源于·云蘭整裝
在餐廳區域的設計中,我們選擇了現代簡約風格的餐桌,其簡潔的線條和光潔的桌面與整個空間完美融合。當室外的天光透過窗戶灑入,與桌面上的透明瓶罐飾品相互映襯,讓光影在空間中舞動,為餐廳增添了一份柔美婉約的質感。
▲完工實拍圖 ©源于·云蘭整裝
在顏色搭配上,我們精心挑選了白色餐桌和灰色椅子,還特別注意了燈光的搭配。房間內使用了暖色調的燈光,它散發出溫馨的光芒,為餐廳營造出一個舒適的用餐環境。
▲完工實拍圖 ©源于·云蘭整裝
在廚房設計中,我們運用黑白色調、采用了U型布局,將水槽、切菜區、烹飪區等功能區域沿著一條直線或直角進行排列。這種布局不僅優化了操作流程,使業主在烹飪過程中能夠輕松轉換不同的工作區域,還充分利用了空間,提高了廚房的使用效率。
▲完工實拍圖 ©源于·云蘭整裝
▲完工實拍圖 ©源于·云蘭整裝
主臥通過采用白色墻壁和灰色地板,為臥室營造了一種寧靜的氛圍。同時,床上用品的色彩選擇則注入了活力和溫暖,使空間更加生動。在布局方面,我們精心規劃了家具的擺放,既確保了足夠的儲物空間,又創造了舒適的休息區域。
▲完工實拍圖 ©源于·云蘭整裝
▲完工實拍圖 ©源于·云蘭整裝
在次臥我們巧妙地融入了塌塌米的設計理念。這種設計不僅大幅度增加了儲物空間,讓業主能夠方便地收納家中的小件物品以及換季的被褥,還有助于保持家中整體的整潔與美觀。更重要的是,塌塌米的多功能性讓次臥能夠以多功能居室被靈活運用,它可以輕松轉變為書桌、梳妝臺或飄窗等不同的功能區域,極大地豐富了空間的使用場景。
▲完工實拍圖 ©源于·云蘭整裝
▲完工實拍圖 ©源于·云蘭整裝
在衛生間的設計上,我們以白色和灰色為主色調,墻磚選擇了淺灰色,與白色的馬桶形成了和諧的對比,增強了空間的整體感。同時,我們還在洗手臺上巧妙地布置了一條燈帶,不僅提供了充足的照明,還進一步提升了空間的層次感,讓整個衛生間顯得更為寬敞明亮。
▲完工實拍圖 ©源于·云蘭整裝
▲完工實拍圖 ©源于·云蘭整裝
玄關柜在我們的裝修設計中,不僅具備接待客人、換衣、換鞋和放包等基礎功能,還能有效延伸空間,讓玄關區域顯得更為寬敞。此外,玄關柜也可以巧妙地打造成小平臺,用來放置鑰匙等小物品,這樣的設計既實用又增加了居家的裝飾趣味性。
▲完工實拍圖 ©源于·云蘭整裝
這套翻新房裝修項目,我們不僅滿足了業主的審美喜好及所有功能需求,而且通過設計改造提升家居生活的溫度和舒適度。如果你也有房子裝修,請聯系我們,我們會用設計技巧和裝修經驗將花費控制在預算之內,實現您的家居夢想。
云蘭整裝專做上海家裝21年,現回頭客及轉介紹業務已占業務總量的4成以上。上海家裝回頭客第一,上海家裝客戶滿意度第一,雙第一口碑品牌。一直堅持免費上門量房,免費360°效果設計,免費清單報價,固定施工隊,工程不轉包不發包!好而不貴,找云蘭整裝,真靠譜!
靠譜裝新家熱線
4000-87-3339
掃一掃,有驚喜


您家舒適美麗家 要花多少錢?
3套設計方案免費一鍵獲取您家裝修報價
Copyright ? 2026 YUNLAN-DECORATION. ALL RIGHTS RESERVER