▲完工實拍圖 ©源于·云蘭整裝
裝修預算:12.8萬 裝修總價:12.8萬
| 裝修主材 | |
|
客餐廳臥室地面 |
圣像 |
|
廚房地面 |
馬可波羅 |
| 乳膠漆 | 多樂士 |
|
衛生間地面 |
馬可波羅 |
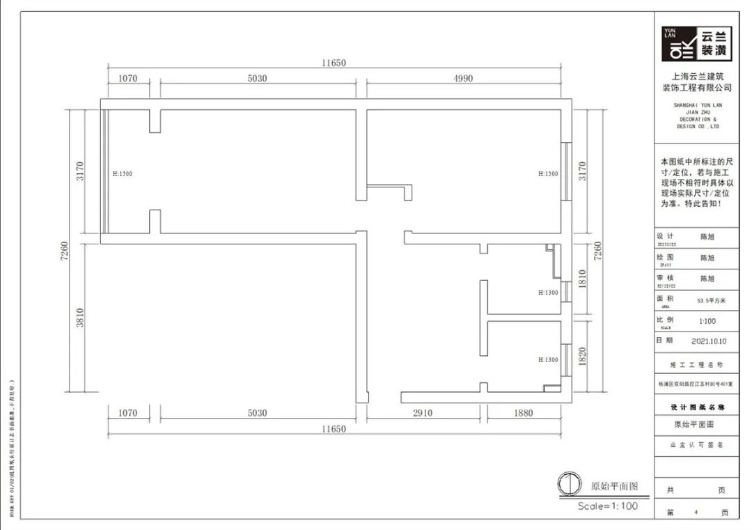
這是套木結構的老房子,我們在開始翻新之前,對房屋進行全面的勘察,發現存在墻頂面不同程度開裂,而且采光比較差。
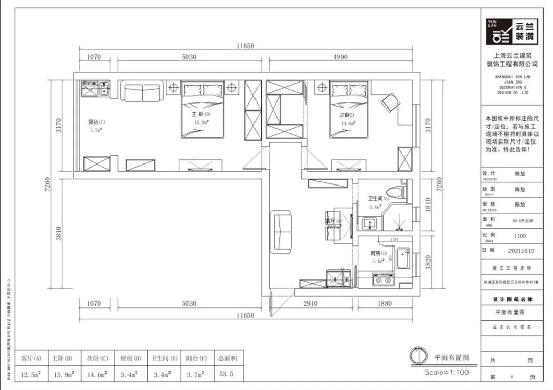
本次裝修以簡約風格為主,墻面采用集成墻面替代乳膠漆。頂面采用整體石膏板吊頂,解決墻頂面開裂的問題。廚房采用雙玻璃移門,增加客廳的通透感。
圖 賞
▲原始戶型圖
▲平面布置圖
▲完工實拍圖 ©源于·云蘭整裝
空間整體以米灰色調為主,將現代感軟裝與整體空間色調融為一體,三聯動移門更為客廳增加了光感。
▲完工實拍圖 ©源于·云蘭整裝
▲完工實拍圖 ©源于·云蘭整裝
電視背景與餐邊柜融為一體,縱向的延伸增大客廳的比例,視覺上也更加寬敞明亮。
▲完工實拍圖 ©源于·云蘭整裝
▲完工實拍圖 ©源于·云蘭整裝
集成墻板的設計具有施工流程簡單的優點,不存在其他費用。簡化墻體處理,無污染、高效率、板材與線條搭配效果呈現極佳,頂面做了無主燈吊頂,既有業主所需燈光效果,又解決了原頂面開裂的問題。
▲完工實拍圖 ©源于·云蘭整裝
▲完工實拍圖 ©源于·云蘭整裝
小孩房墻面運用了碰撞的色彩,再加上黃色的電競椅,活潑動感十足,妥妥的兒童專屬空間。
▲完工實拍圖 ©源于·云蘭整裝
▲完工實拍圖 ©源于·云蘭整裝
廚房U字型廚柜設計,使得取、洗、切、炒、擺的操作流程更順暢。上下柜設計使小小的廚房的收納能力也大大提升。
▲完工實拍圖 ©源于·云蘭整裝
▲完工實拍圖 ©源于·云蘭整裝
衛生間容易積聚潮氣,所以通風特別關鍵。鉆石形淋浴房靠窗擺放,兩側分別放置馬桶、臺盆。小衛生間把晨起主要活動空間集中在一起,而且動線符合人的行為習慣,讓此功能區更加實用。
▲完工實拍圖 ©源于·云蘭整裝
▲完工實拍圖 ©源于·云蘭整裝
▲完工實拍圖 ©源于·云蘭整裝
由于衛生間面積有限,我們將洗衣機移至陽臺。我們還在上方定制一個柜子,增加儲物空間。下方我們做了一個小型洗衣池,洗衣機可嵌入洗手池底部。不僅提升了空間的使用效率,同時也使生活更加便捷和有序。
▲完工實拍圖 ©源于·云蘭整裝
這套翻新裝修項目我們滿足了業主的審美喜好及所有功能需求。而且通過設計改造提升家居生活的溫度和舒適度。如果你也有房子裝修,預算又不是很充裕,一定要聯系我們,我們會用設計技巧和裝修經驗將花費控制在預算之內,實現您的家居夢想。
云蘭整裝專做上海家裝21年,現回頭客及轉介紹業務已占業務總量的4成以上。上海家裝回頭客第一,上海家裝客戶滿意度第一,雙第一口碑品牌。一直堅持免費上門量房,免費360°效果設計,免費清單報價,固定施工隊,工程不轉包不發包!建面66㎡ 11萬一口價真全包!好裝潢,找云蘭,靠譜!裝修不滿意,當天退你款!龍年裝新家就找云蘭整裝!
靠譜裝新家熱線
4000-87-3339
掃一掃,有驚喜


您家舒適美麗家 要花多少錢?
3套設計方案免費一鍵獲取您家裝修報價
Copyright ? 2026 YUNLAN-DECORATION. ALL RIGHTS RESERVER