▲完工實拍圖 ©源于·云蘭整裝
| 裝修主材 | |
|
客餐廳地面 |
諾貝爾 |
|
臥室地面 |
林牌 |
| 乳膠漆 | 多樂士 |
|
衛生間地面 |
諾貝爾 |
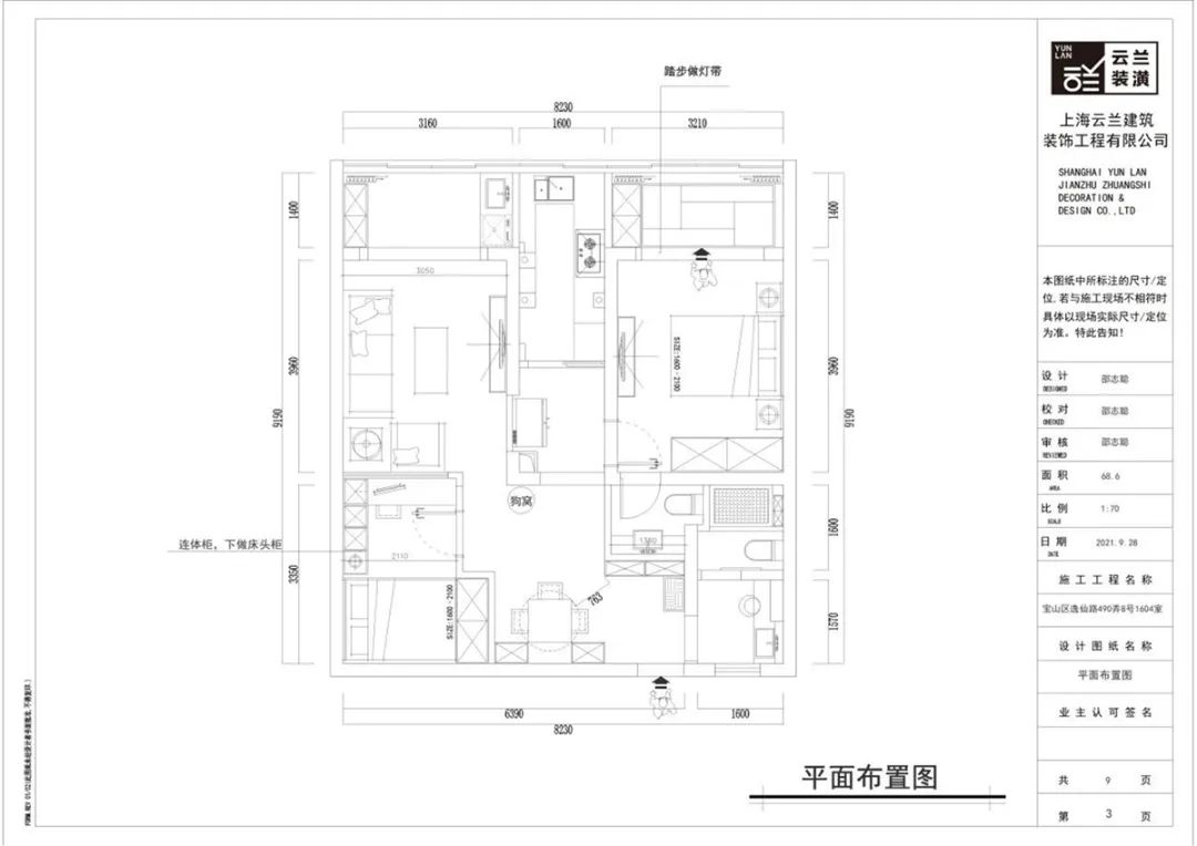
該居室男女主人都是35歲左右的中年成功人士,家中女兒放假會回來,生活品質要求很高,喜歡明亮大氣,可以略微的裝飾背景點綴,在造型和色彩上要求簡約而不簡單,所以該套居室整體裝修風格是現代原木風格,電視墻采用涂料,全屋無主燈設計,中央空調,新風和地暖一應俱全。餐廳選用橡木實木餐桌,更加彰顯客戶的穩重,也是身份地位的體現,次臥的提升窗也解決了沒有采光和通風的問題。
圖 賞
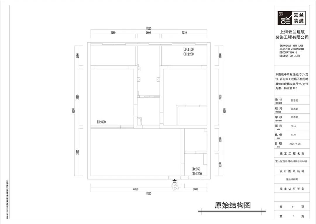
▲原始戶型圖
▲平面布置圖
▲完工實拍圖 ©源于·云蘭整裝
客廳是一家人活動頻率最高的區域,要求寬闊、明亮。卡其色沙發加上淺灰色地磚,頂面無主燈的設計,強調空間的整潔和舒適性,整體給人以簡潔、大氣、時尚的感覺。
▲完工實拍圖 ©源于·云蘭整裝
頂面無主燈,用筒燈,線性燈和磁吸燈,相互配合,可以多種場景配合使用,趣味性和實用性都兼顧了。
▲完工實拍圖 ©源于·云蘭整裝
▲完工實拍圖 ©源于·云蘭整裝
進門就是餐廳區域,沒有過分的去設計,布置了餐邊柜,日常的咖啡機和面包機可以方便使用,整個空間讓人感覺非常舒服,體驗美好的用餐時光。
▲完工實拍圖 ©源于·云蘭整裝
▲完工實拍圖 ©源于·云蘭整裝
廚房間整體空間不大,業主對操作臺面要求很高,因此兩面都進行了利用,上下櫥柜也選用了上白下灰的拼色處理,空間感覺也更加活躍,臺面選用了2公分的魚肚白石英石,使用起來方便也好打理。
▲完工實拍圖 ©源于·云蘭整裝
主臥也是無主燈的設計,主打就是簡潔,地面原木地板,床選擇了灰色的皮床,簡單的原木床頭柜,空間非常溫馨。

▲完工實拍圖 ©源于·云蘭整裝
主臥連接陽臺,因為家中雙陽臺,我們便把這個陽臺擴給了主臥,增加主臥面積,住的更加舒適。
▲完工實拍圖 ©源于·云蘭整裝
▲完工實拍圖 ©源于·云蘭整裝
衛生間空間不算很大,1.3米長的臺盆,我們還利用空間設計出化妝的區域,智能馬桶使用起來方便也更加衛生,三移門的淋浴房,墻磚和地磚用淡灰色,整體衛生間不但滿足日常使用,給人的感覺也非常舒適大氣。
▲完工實拍圖 ©源于·云蘭整裝
▲完工實拍圖 ©源于·云蘭整裝
本套房子的玄關設計也是一大亮點,入戶玄關是一個緩存過度地段,門口的換鞋柜方便換鞋,使空間更加完善,中間和下方漏空的鞋柜,隨手可以放置包包,鑰匙等,既實用,又有裝飾性。
這套翻新房我們不僅滿足了業主的審美喜好及所有功能需求,而且通過設計改造提升家居生活的溫度和舒適度。如果你也有房子裝修,預算又不是很充裕,一定要聯系我們,我們會用設計技巧和裝修經驗將花費控制在預算之內,實現您的家居夢想。
云蘭整裝專做上海家裝21年,現回頭客及轉介紹業務已占業務總量的4成以上。上海家裝回頭客第一,上海家裝客戶滿意度第一,雙第一口碑品牌。一直堅持免費上門量房,免費360°效果設計,免費清單報價,固定施工隊,工程不轉包不發包!建面66㎡ 11萬一口價真全包!好裝潢,找云蘭,靠譜!
靠譜裝新家熱線
4000-87-3339
掃一掃,有驚喜


您家舒適美麗家 要花多少錢?
3套設計方案免費一鍵獲取您家裝修報價
Copyright ? 2026 YUNLAN-DECORATION. ALL RIGHTS RESERVER