▲完工實拍圖 ©源于·云蘭整裝
裝修預算:14.3萬 裝修總價:14.3萬
| 裝修主材 | |
|
客餐廳臥室地面 |
菲林格爾 |
|
廚房地面 |
馬可波羅 |
| 乳膠漆 | 多樂士 |
|
衛生間地面 |
馬可波羅 |
該居室裝修風格既符合男主人商業精英的氣質,也彰顯女主人教育領導的高雅品味。整套房子線條簡潔,集成大板背景墻的運用,增添了現代時尚的氣息。
考慮到目前只有夫妻兩人居住,我們將次臥改造成一個臨時會客室,既不浪費空間,又滿足了客戶的待客需求。
圖 賞
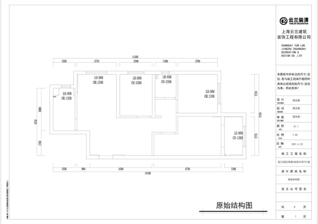
▲原始戶型圖
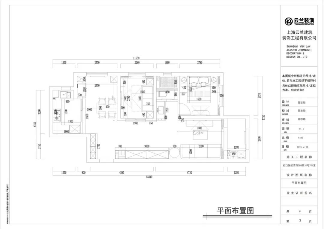
▲平面布置圖
▲完工實拍圖 ©源于·云蘭整裝
客廳采用精致的纖維大板電視墻和金屬線條的點綴,提升了空間的質感。優選落地電視柜、匠造雙眼皮吊頂,再搭配溫馨的地板,整個客廳洋溢著舒適與溫暖。
▲完工實拍圖 ©源于·云蘭整裝
沙發背景墻也采用了色調統一的纖維大板材質,純色與木色的簡單拼接,讓客廳區域增添秩序感。裝飾方面我們用邊幾、花瓶和掛畫點綴空間,讓客廳區域靈動、充滿了生活的氣息。
▲完工實拍圖 ©源于·云蘭整裝
餐廳區域依照我們對生活的理解,從細節著手,打造出實用又充滿溫馨的用餐環境。餐廳地面選用地磚通鋪,餐桌則精心挑選了巖板材質,既方便日常清潔維護。
▲完工實拍圖 ©源于·云蘭整裝
▲完工實拍圖 ©源于·云蘭整裝
廚房原本面積較小,不能滿足日常的烹飪需求。我們通過外擴設計,擴大了廚房面積,滿足烹飪需求的同時還可分類收納各類小家電,讓廚房更加整潔有序。
▲完工實拍圖 ©源于·云蘭整裝
▲完工實拍圖 ©源于·云蘭整裝
衛生間采用干濕分離設計,既方便日常的洗漱和清潔,又提升了空間的使用效率。特別打造的1.2米超大臺盆柜,不僅提供了充足的儲物空間,還避免了早上多人洗漱的擁擠情況。
▲完工實拍圖 ©源于·云蘭整裝
濕區精心配置了馬桶和淋浴設施,特別選用大品牌的極窄淋浴房。淋浴房采用大理石拉槽設計,使水流暢通無阻,保持淋浴區的干爽。
▲完工實拍圖 ©源于·云蘭整裝
入戶鞋柜設計為頂天立地式,中間鏤空方便放置進門的包包和鑰匙。底部騰空,便于放置進家門的鞋子,保持門口整潔美觀。
▲完工實拍圖 ©源于·云蘭整裝
走道儲物柜的設計是一大亮點,門板采用平板一門到頂的設計,金屬通頂拉手更顯大氣。通頂設計不僅具備強大的儲物功能,其簡潔的外觀也為家居生活增添了一份裝飾性。
▲完工實拍圖 ©源于·云蘭整裝
這套毛坯房裝修項目我們滿足了業主的審美喜好及所有功能需求。而且通過設計改造提升家居生活的溫度和舒適度。如果你也有房子裝修,預算又不是很充裕,一定要聯系我們,我們會用設計技巧和裝修經驗將花費控制在預算之內,實現您的家居夢想。
靠譜裝新家熱線
4000-87-3339
掃一掃,有驚喜


您家舒適美麗家 要花多少錢?
3套設計方案免費一鍵獲取您家裝修報價
Copyright ? 2026 YUNLAN-DECORATION. ALL RIGHTS RESERVER