▲完工實拍圖 ©源于·云蘭整裝
裝修預算:14.5萬 裝修總價:14.5萬
| 裝修主材 | |
|
客餐廳臥室地面 |
潔牌 |
|
廚房地面 |
潔牌 |
| 乳膠漆 | 立邦 |
|
衛生間地面 |
金雅陶 |
業主因為有國外生活經歷,我們整體以美式田園為主基調,整體配色鮮艷、明亮、高飽和碰撞性搭配,通過大膽的撞色和對比色創造意想不到的視覺驚喜!
本套房子客戶留給自己平時節假日過來小住,業主前前后后找了個好幾裝修公司,最終還是被我公司的嚴管理吸引住了。唯一一點就是原始戶型客廳過道有個梁,這個梁物業是允許可以拆的。大多數人的觀念,利用梁特點做了一個拱形門。
圖 賞
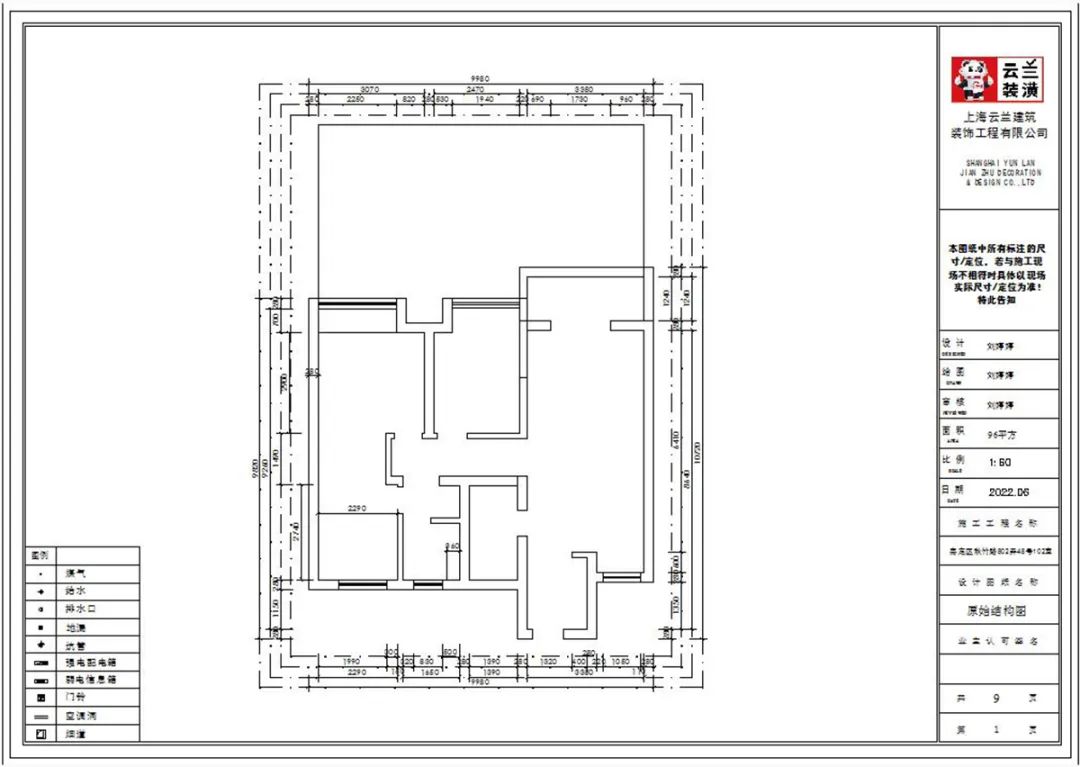
▲原始戶型圖
▲平面布置圖
▲完工實拍圖 ©源于·云蘭整裝
高飽和度的皮質沙發把復古的格調演繹出來,吊燈和落地燈的選擇都共同打造油畫一樣的美感氛圍。暖色調的墻漆和地面瓷磚相呼應,懸掛背景墻上的裝飾畫更是恰到好處,精心挑選的畫框和位置,提升整體設計效果。美式復古風的濃郁風情在這個客廳的種種細節里,體現的非常充分。
▲完工實拍圖 ©源于·云蘭整裝
▲完工實拍圖 ©源于·云蘭整裝
電視背景與餐邊柜融為一體,縱向的延伸增大的客廳的比例感。
▲完工實拍圖 ©源于·云蘭整裝
餐廳安排在廚房外側,動線的設置上合理又方便,專門挑選的美式圓餐桌有一種粗獷的美感。
▲完工實拍圖 ©源于·云蘭整裝
臥室選擇鋪木地板,深一些的復古做舊的色澤讓地面更有質感。
▲完工實拍圖 ©源于·云蘭整裝
美式實木床鋪實用又舒適,臥室的功能性俱全。通頂的衣柜有著高級的質感,美式風情處處昭顯。
▲完工實拍圖 ©源于·云蘭整裝
▲完工實拍圖 ©源于·云蘭整裝
▲完工實拍圖 ©源于·云蘭整裝
U型櫥柜滿足業主喜歡做飯的需求,棋盤格地磚讓整體不顯單調,?淺的地柜做開放式,可以放一些瓶瓶罐罐。
▲完工實拍圖 ©源于·云蘭整裝
▲完工實拍圖 ©源于·云蘭整裝
長條磚豎鋪讓干區區更顯精致高挑,啞光白色五金自帶神秘感,與暖白色瓷磚碰撞出別樣的時尚感。
▲完工實拍圖 ©源于·云蘭整裝
衛生間的瓷磚選擇暖白色瓷磚充分提升空間收納的利用率,貼磚師傅良好的手藝。
▲完工實拍圖 ©源于·云蘭整裝
入戶空間僅2㎡左右,且寬度僅1148mm,特意選了這款到頂鞋柜,用來滿足日常換鞋和隨手置物的需求、各種囤貨、雨傘等),鞋柜和儲物柜都做了扣手槽設計讓生活更輕松
▲完工實拍圖 ©源于·云蘭整裝
這套商品房裝修項目我們滿足了業主的審美喜好及所有功能需求。而且通過設計改造提升家居生活的溫度和舒適度。如果你也有房子裝修,預算又不是很充裕,一定要聯系我們,我們會用設計技巧和裝修經驗將花費控制在預算之內,實現您的家居夢想。
云蘭整裝專做上海家裝21年,現回頭客及轉介紹業務已占業務總量的4成以上。上海家裝回頭客第一,上海家裝客戶滿意度第一,雙第一口碑品牌。一直堅持免費上門量房,免費360°效果設計,免費清單報價,固定施工隊,工程不轉包不發包!建面66㎡ 11萬一口價真全包!好裝潢,找云蘭,靠譜!裝修不滿意,當天退你款!龍年裝新家就找云蘭整裝!
靠譜裝新家熱線
4000-87-3339
掃一掃,有驚喜


您家舒適美麗家 要花多少錢?
3套設計方案免費一鍵獲取您家裝修報價
Copyright ? 2026 YUNLAN-DECORATION. ALL RIGHTS RESERVER