▲完工實拍圖 ©源于·云蘭整裝
| 裝修主材 | |
|
客餐廳地面 |
諾貝爾 |
|
廚房地墻面 |
諾貝爾 |
| 乳膠漆 | 多樂士 |
|
衛生間地面 |
諾貝爾 |
▲完工實拍圖 ©源于·云蘭整裝
這套聯排別墅業主夫婦是業界精英,為了實現夢想家居,給到的裝修預算相當充足。為了合理分配預算讓物超所值看的見摸得著,我們給業主精選了業界色澤、工藝、質量、環保性極佳的裝飾材料,還為居室配備了竹木纖維板電視墻、全屋中央空調、新風和地暖等設施,以確保兼具美感、舒適度和實用性。
圖 賞
▲原始戶型圖
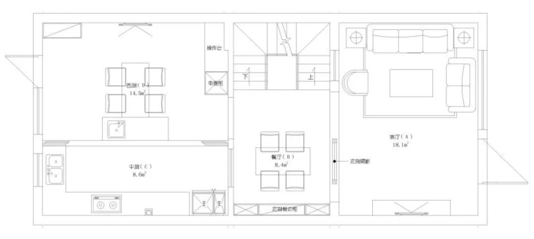
▲平面布置圖
▲完工實拍圖 ©源于·云蘭整裝
以人為本,拒絕華而不實。為了給客戶創造一個寬敞、明亮且舒適的客廳空間,我們精心配置了深灰色的沙發和淺灰色的地磚,通過黑白灰的色彩搭配,讓整個空間整潔、大氣和時尚。同時,我們細節上通過創意燈飾和家具的裝飾,提升了整個空間的品質感。
▲完工實拍圖 ©源于·云蘭整裝
考慮到客戶的裝修需求和審美觀念,電視區我們選用竹木纖維板背景墻。這種背景墻不僅環保健康,而且能夠增強整個空間的層次感和立體感。整個電視背景墻與整個居室風格相得益彰,為業主夫婦的居家環境增添藝術格調。
▲完工實拍圖 ©源于·云蘭整裝
在餐廳區域,我們設計了西廚島臺,并將其緊鄰中廚,方便上餐。島臺上方設置了線性燈增強餐廳的光感和空間感。同時,我們特地為客戶定制了玻璃和實木材質相結合的收藏酒柜。柜體分類明確,設計感極具創意,增加空間的層次感和視覺效果。
▲完工實拍圖 ©源于·云蘭整裝
為了滿足業主在餐廳區域的各種需求,我們特別增加了水槽設計,使客戶在享受茶點或需要接水時更加便利。同時,考慮到客戶用餐時的觀影需求,我們在餐廳設計了組合電視柜,電視嵌入其中不僅一體美觀,而且提升收納,將便利性和舒適性做到極致。
▲完工實拍圖 ©源于·云蘭整裝
在廚房空間,我們充分考慮了客戶烹飪的便利性,采用高低臺設計,使烹飪、洗菜更符合人體工學,操作使用更舒適。臺面我們選擇了2公分厚的魚肚白石英石,美觀、耐用、易于打理。
▲完工實拍圖 ©源于·云蘭整裝
廚房門我們選用了深色玻璃推拉門,不僅與空間色調統一,極具裝飾效果增添現代感,而且在烹飪時不用擔心油煙、異味問題,兼具美觀度和實用性。
▲完工實拍圖 ©源于·云蘭整裝
通過合理的布局和設計,我們解決了主臥的采光問題。考慮到客戶對主臥明亮配色的需求,我們采用了橘紅色作為主要色塊,為空間注入了一抹活力。同時利用窗簾、床品等軟裝飾,進一步提升了空間的舒適度和質感。
▲完工實拍圖 ©源于·云蘭整裝
▲完工實拍圖 ©源于·云蘭整裝
有了主臥定調,兒童房設計也就變得簡單。只要在色彩搭配上使其更符合兒童喜好即可。我們選擇了黃色的床單、粉白色床頭柜、綠色和紫色的懶人布袋沙發等,這種明亮的色彩不僅讓空間更加活潑,也符合兒童天真爛漫的性格,創造了一個安全、舒適、充滿童趣的成長空間。
▲完工實拍圖 ©源于·云蘭整裝
▲完工實拍圖 ©源于·云蘭整裝
衛生間干區我們設計了1.6米長的臺盆,充分滿足了業主的大空間高品質需求。巧妙地設計了小洗衣機的位置,使得整個空間得到了高效的利用。
▲完工實拍圖 ©源于·云蘭整裝
濕區我們選用了常規馬桶,并在上方安裝了電熱毛巾架,從而解決了毛巾易潮濕的問題。淋浴房采用移動推拉門設計,不僅簡潔大方,而且易于清潔。
▲完工實拍圖 ©源于·云蘭整裝
利用角落區域我們通過定制柜的方式打造出業主專屬衣帽間,增加了儲物空間,讓衣物、鞋子、箱包等物品得到有序的收納。
▲完工實拍圖 ©源于·云蘭整裝
根據客戶簡單實用的健身房裝修需求,采用簡單、清爽的設計風格,避免過多的裝飾,保持空間的開闊和整潔。
▲完工實拍圖 ©源于·云蘭整裝
瑜伽房同樣采用簡單實用的設計,以自然、溫馨為設計風格,強調空間的整體協調性和舒適感。避免過多的裝飾和繁瑣的布局,同時合理安排瑜伽設施和教具的擺放位置,方便客戶使用。
這套聯排別墅項目,我們不僅滿足了業主的審美喜好及所有功能需求,而且在細節處以求提升生活的品質和格調。如果你也喜歡這種現代簡約裝修風格,聯系我們,我們會用設計技巧和裝修經驗將花費控制在預算之內,實現每一位業主的家居夢想。
云蘭整裝專做上海家裝21年,現回頭客及轉介紹業務已占業務總量的4成以上。上海家裝回頭客第一,上海家裝客戶滿意度第一,雙第一口碑品牌。一直堅持免費上門量房,免費360°效果設計,免費清單報價,固定施工隊,工程不轉包不發包!建面66㎡ 11萬一口價真全包!好裝潢,找云蘭,靠譜!裝修不滿意,當天退你款!龍年裝新家就找云蘭整裝!
靠譜裝新家熱線
4000-87-3339
掃一掃,有驚喜


您家舒適美麗家 要花多少錢?
3套設計方案免費一鍵獲取您家裝修報價
Copyright ? 2026 YUNLAN-DECORATION. ALL RIGHTS RESERVER