▲完工實拍圖 ©源于·云蘭整裝
裝修預算:15.2萬 裝修總價:15.2萬
| 裝修主材 | |
|
客餐廳臥室地面 |
菲林格爾 |
|
廚房地面 |
馬可波羅 |
| 乳膠漆 | 立邦 |
|
衛生間地面 |
諾貝爾 |
這套房子為新婚裝修,女主人做策劃工作,對設計風格和空間格局有明確的想法。裝修過程她一直抽時間和精力“督導”,所以最終呈現效果也是算是女業主策劃工作的又一次體現,嘻~~
根據女主人的策劃職業背景,我們選用原木風進行裝修規劃,確保設計既符合女主人的審美要求,又能滿足婚房的溫馨與時尚氛圍。同時,我們又對房屋格局進行優化,確保空間利用的合理及實用。如:目前房子僅為二位新人居住,暫時沒有他人居住需求,所以我們僅將主臥裝修布陳,而將次臥短時間做儲藏室兼書房。既節省花費也能為將來的功能需求作預留。
圖 賞
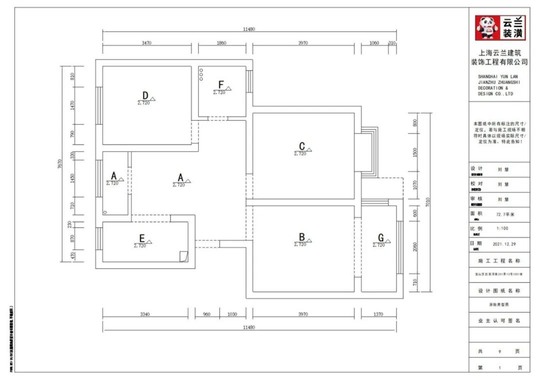
▲原始戶型圖
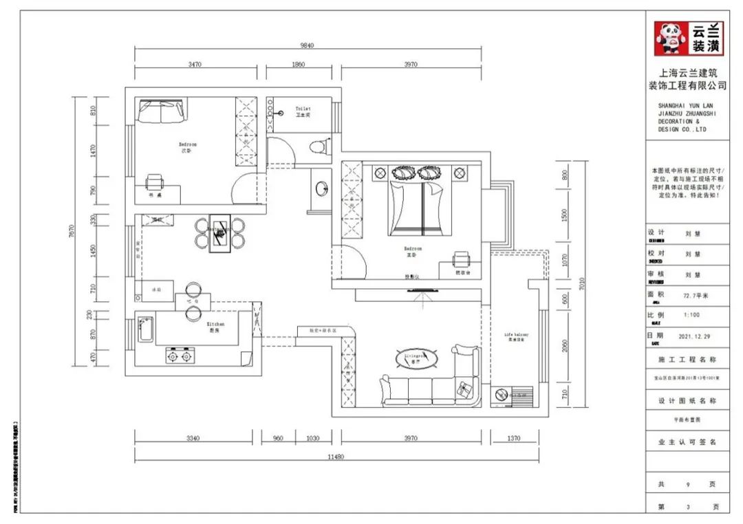
▲平面布置圖
▲完工實拍圖 ©源于·云蘭整裝
客廳是體現裝修風格的關鍵空間,所以我們和女主人一起在客廳規劃上花了很大的精力。由于客廳為超長戶型,我們就用組合柜、幕簾分割出獨立玄關、方形客廳、寬敞陽臺三個空間,每個空間既獨立又統一,可隨心盡享。
客廳吊頂采用現在很流行的線性無主燈,地面采用原木色地板。為了強化原木風的清新質感,我們將沙發背景墻以格柵木裝飾,右邊墻同樣采用咖啡色木飾面襯底。茶幾選的是兩個大小圓形相結合的原木色創意餐桌,再配個咖啡休閑凳子點綴空間,舒適而愜意。
▲完工實拍圖 ©源于·云蘭整裝
無論什么裝修風格都要為業主的預算考慮,在打造電視背景墻時,我們選用大白墻和簡易定制柜的組合,實惠且美觀。電視機嵌入柜體,四周用線性燈做點綴,減少獨立放置家電產生的突兀感。
定制柜下面做了五個抽屜落地,滿足收納的同時還有臺面可隨心擺放心儀物件,營造專屬溫馨氛圍。這樣簡單的電視墻設計不僅滿足業主的預算要求,也能讓原風木舒適得體不過分。
▲完工實拍圖 ©源于·云蘭整裝
新購房多是整體設計規劃,這導致一些區域的使用效率不高、布局不合理。這套房餐廳空間原本連著陽臺,陽臺小而無用,餐廳空間也極其拮據。于是我們把原有的陽臺敲掉,在左邊放了一個冰箱,右邊放了一個玻璃柜,配上原木色的餐桌和椅子,這樣讓餐廳空間更明亮、寬敞,用餐也更顯溫馨舒適。
▲完工實拍圖 ©源于·云蘭整裝
我們也將廚房原本的封閉空間,改成為開放式廚房。廚房頂面采用現在流行的大板吊頂配上線性燈,地面用木紋磚。L型定制櫥柜整體采用原木色門板,配上白色的臺面,整體干凈、簡潔。
為了讓空間融合度更高,我們還特地為這個空間設置了吧臺。吧臺材質與廚柜門板、餐廳桌面顏色統一,可充當廚房和餐廳的緩沖空間,夫妻二人配合烹飪上菜非常方便。而且也可提供早餐、下午茶、睡前甜點等快食空間,極具實用性和時尚感。
▲完工實拍圖 ©源于·云蘭整裝
主臥地面鋪的實木復合地板,房頂采用懸浮無主燈+線性燈。背景墻選了現在比較流行的硬包+原木色墻板。柔和的色調,半墻造型點綴燈帶線,讓家里氛圍感更純粹。皮革硬包+原木色木飾面+燈帶,見光不見燈,配上咖啡色的窗簾和白沙,整個空間層次明細,原木風效果突出。

▲完工實拍圖 ©源于·云蘭整裝
▲完工實拍圖 ©源于·云蘭整裝
原衛生間比較小,而進臥室門口中間有個過道,我們綜合考量做了個干濕分離。用現在流行的長虹玻璃隔離出干濕空間,透光而有私密感。墻面采用黑色水泥磚,用原木色木紋磚上墻,拉滿氛圍感。創意圓形的鏡子配上線性燈,美觀時尚。
▲完工實拍圖 ©源于·云蘭整裝
衛生間地面鋪600*1200的啞光灰色地磚,直接拿地面磚上墻。節省花費也使得衛生間個性另類。衛生間濕區采用木紋磚、槍灰色地漏,頂面采用現在流行的蜂窩大板,再配上線性燈和筒燈,讓整個衛生間光源充足更上檔次。
PS:值得一提的是我們在淋浴龍頭的位置,做了一個三層式壁龕,在實用的基礎上盡可能地提升收納功能,改善了小空間不利條件。
▲完工實拍圖 ©源于·云蘭整裝
進門玄關處,地面鋪的實木復合地板,右手邊做了原木色鞋凳,上面的配電箱也選擇了原木色的裝飾畫作為隱藏。左邊做了收納鞋柜,中間鏤空可放置挎包、鑰匙等,底部鏤空處與常規鞋等高方便換室內拖鞋,非常實用。再加上原木色的柜體和門板配上線性燈,進門就能感受原木風的清新、明亮。
▲完工實拍圖 ©源于·云蘭整裝
陽臺處我們采用了多功能設計,讓原本單調的空間有了收納、洗衣、晾曬、梳洗、觀景、閱讀等多種功能。右手邊原木色定制柜體做了當下很流行的洗衣柜組合,洗衣機旁邊做了小洗手池,可以隨時沖洗洗衣時手上沾染的泡沫。
▲完工實拍圖 ©源于·云蘭整裝
這套女策劃師婚房,我們不僅滿足了業主的審美喜好及所有功能需求,而且在細節處以求提升著生活的溫度和舒適度,助力二位新人自然真實的幸福。這套房裝修風格為當下備受推崇的原木風,如果你也喜歡這種裝修風格,預算又不是很充裕,一定要聯系我們,我們會用設計技巧和裝修經驗將花費控制在預算之內,實現每一位業主的家居夢想。
云蘭整裝專做上海家裝21年,現回頭客及轉介紹業務已占業務總量的4成以上。上海家裝回頭客第一,上海家裝客戶滿意度第一,雙第一口碑品牌。一直堅持免費上門量房,免費360°效果設計,免費清單報價,固定施工隊,工程不轉包不發包!建面66㎡ 11萬一口價真全包!好裝潢,找云蘭,靠譜!裝修不滿意,當天退你款!龍年裝新家就找云蘭整裝!
靠譜裝新家熱線
4000-87-3339
掃一掃,有驚喜


您家舒適美麗家 要花多少錢?
3套設計方案免費一鍵獲取您家裝修報價
Copyright ? 2026 YUNLAN-DECORATION. ALL RIGHTS RESERVER