▲完工實拍圖 ©源于·云蘭裝潢
裝修預算:12萬 裝修總價:12萬
| 裝修主材 | |
|
客餐廳臥室地面 |
圣象地板 |
|
廚房地墻面 |
金雅陶玻化磚 |
| 乳膠漆 | 多樂士 |
|
衛生間地面 |
藝術花磚防滑磚 |
這套房子是三室二廳一衛,主臥主人住,次臥女兒住,另外一間是兒子住。該居室主人夫妻雙方都是企業家,依據客戶喜好和要求,我們在該套房子裝修上采用簡潔、干練、舒適、自然的現代簡約風格。線條簡約,造型平面不復雜,色彩搭配上追求淡雅干凈。
圖 賞
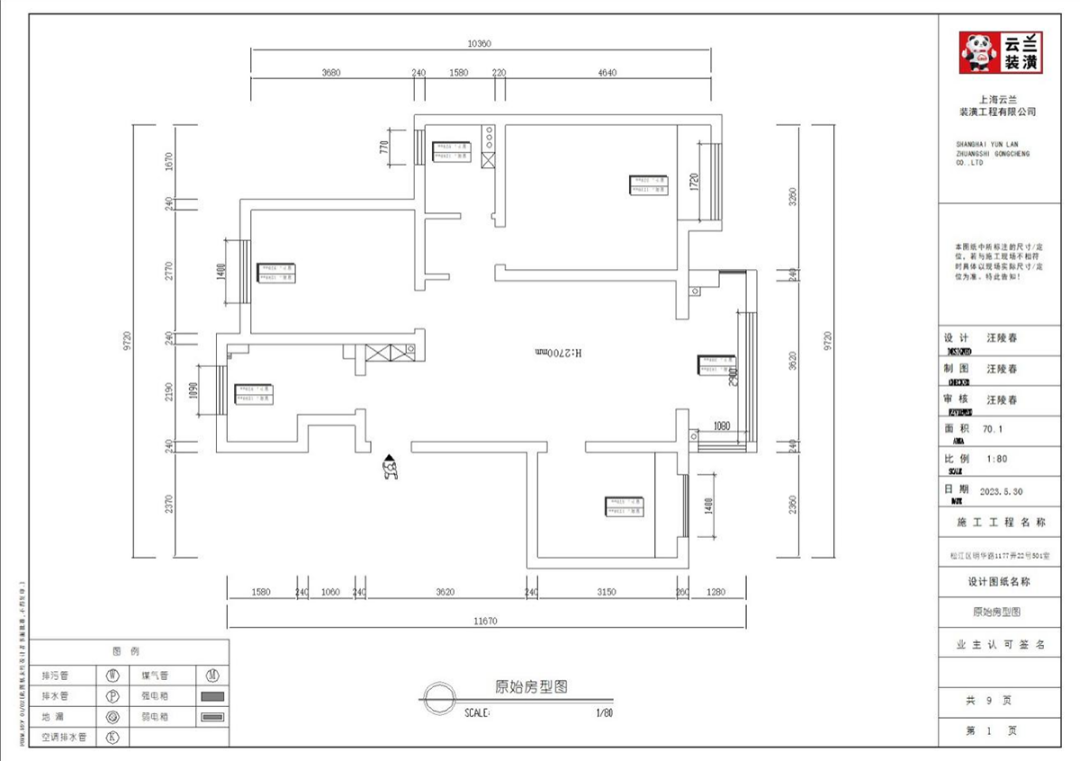
▲原始戶型圖
▲平面布置圖
▲完工實拍圖 ©源于·云蘭裝潢
客廳開間很大,淺灰色皮質沙發立刻檔次提高很多,放一組懶人沙發,客廳空間也很寬闊。吊頂造型上采用單眼皮吊頂。地面采用原木色地板。造型和色調上無不給人以簡潔、時尚的感覺。
▲完工實拍圖 ©源于·云蘭裝潢
65寸大屏電視,沙發旁邊的裝飾盆景作襯托,巖板臺面電視柜也很大氣,讓空間不但時尚而且清爽。沙發背景刷米白色涂料,米色的沙簾,沙發背景留白設計,色調上墻面涂料和窗簾用淺色,沙發用淺灰色,深淺搭配的錯落有致,既溫馨又簡潔。
▲完工實拍圖 ©源于·云蘭裝潢
主臥原木地板,所以床選擇的是淺色,衣柜門板也是淺色,這樣整體搭配,就不會那么突兀,臥室帶個大飄窗,體現了簡約風格的簡潔、隨意,不拘一格。

▲完工實拍圖 ©源于·云蘭裝潢
▲完工實拍圖 ©源于·云蘭裝潢
次臥與主臥整體風格極其統一,除了沒有小陽臺外、化妝臺外,我們相當于把主臥COPY過來,這樣整個房子的設計極具靚麗秩序感。
▲完工實拍圖 ©源于·云蘭裝潢
▲完工實拍圖 ©源于·云蘭裝潢
兒童房間較小,我們將床靠窗設計,這樣將多出來的空間做閱讀桌和收納柜,可以空間最大化利用,保障兒童房雖小,但功能俱全。
▲完工實拍圖 ©源于·云蘭裝潢
該套房子廚房空間很大,L型兩面櫥柜,另外冰箱邊上也有操作臺,顏色簡潔明快,材質要干凈和好打理,白色的吊頂和米色的櫥柜相呼應,石英石臺面經久耐用,各種廚房電器全部配齊,滿足主人制作各種美食的需求。
▲完工實拍圖 ©源于·云蘭裝潢
▲完工實拍圖 ©源于·云蘭裝潢
餐廳空間比較方正寬敞,靠墻做一排裝飾柜,既實用、又有裝飾功能,原木色框架,極窄邊框玻璃門和白色木門板相呼應,巖板餐桌把用餐氛圍調和的很溫暖,原木色地板很干凈,色彩和造型上都簡潔大氣。
▲完工實拍圖 ©源于·云蘭裝潢
▲完工實拍圖 ©源于·云蘭裝潢
衛生間干區1米長的洗手臺,搭配鏡柜,白色吊頂,黑色鈦合開門,體現主人高檔次的生活品味和優雅的審美觀。
▲完工實拍圖 ©源于·云蘭裝潢
干區1米長的洗手臺,搭配鏡柜,白色吊頂,黑色鈦合開門,體現主人高檔次的生活品味和優雅的審美觀。
▲完工實拍圖 ©源于·云蘭裝潢
本套房子的入戶玄關柜設計也是一大亮點,既實用,又有裝飾性,三門儲物柜,中間鏤空可以擺點裝飾品,給人感覺不僅雅致而且有韻味。
▲完工實拍圖 ©源于·云蘭裝潢
▲完工實拍圖 ©源于·云蘭裝潢
陽臺是晾曬衣物的場所,洗衣機和烘干機疊放,一側為儲物柜,顏色以白色為主,超大玻璃窗讓陽光柔和的照進來,很舒適、很愜意。
靠譜裝新家熱線
4000-87-3339
掃一掃,有驚喜


您家舒適美麗家 要花多少錢?
3套設計方案免費一鍵獲取您家裝修報價
Copyright ? 2026 YUNLAN-DECORATION. ALL RIGHTS RESERVER