▲完工實拍圖 ©源于·云蘭裝潢
裝修預算:12.2萬 裝修總價:12.2萬
| 裝修主材 | |
|
客餐廳地面磚 |
金雅陶 |
| 臥室地板 |
圣象 |
| 乳膠漆 | 多樂士 |
|
衛生間地墻面 |
金雅陶 |
該居室業主是一位單身女士,因父母退休后會考慮搬到上海常住,所以次臥留給父母。女主人時尚的同時有著精英的干練。所以在裝修風格上選擇了現代簡約風,想以簡潔的表現形式來滿足對空間環境那種感性的、本能的和理性的需求。
圖 賞
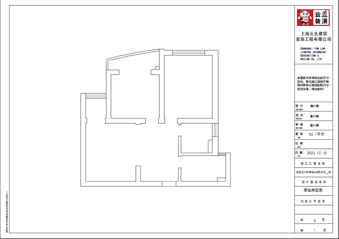
▲原始戶型圖
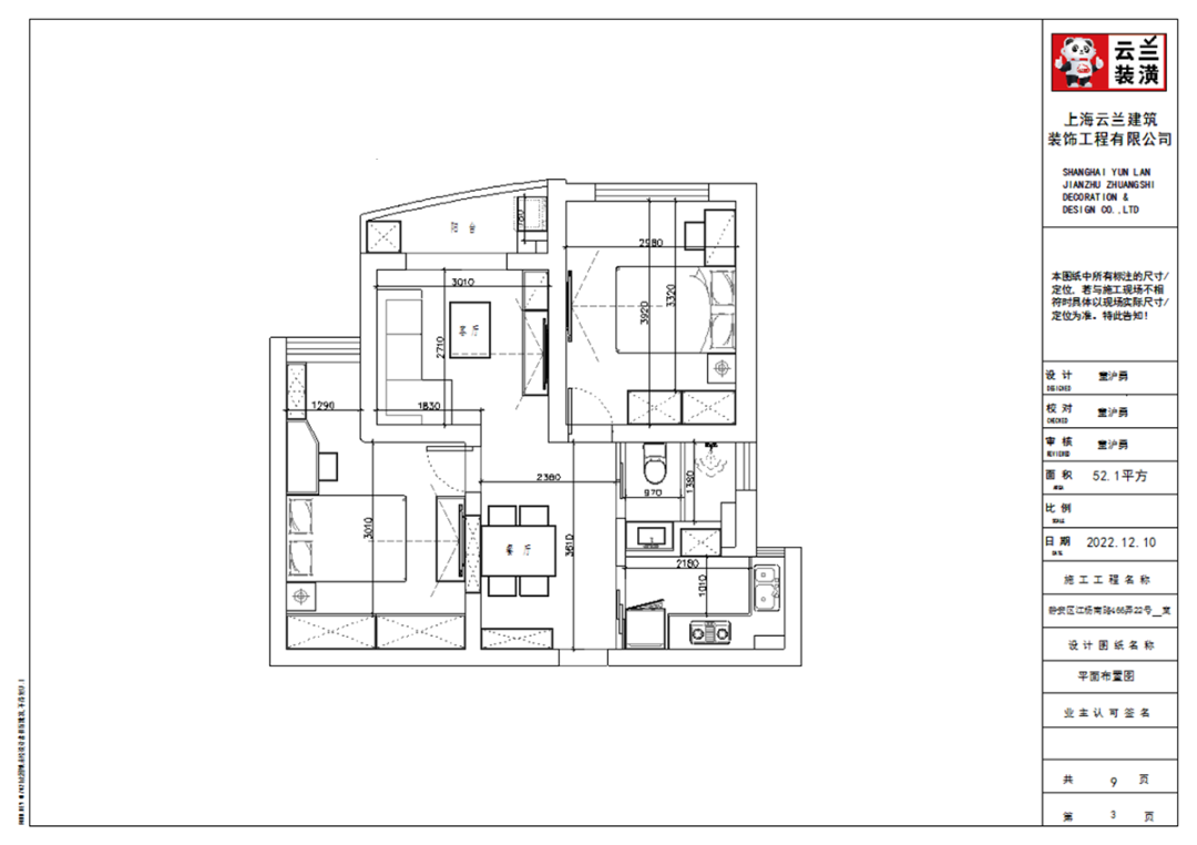
▲平面布置圖
▲完工實拍圖 ©源于·云蘭裝潢
客廳空間并不大,電視墻也并不是很長,所以沒有做過多的裝飾,后期配上65寸的電視更顯簡約。暖色調一字型布藝沙發讓家的環境更添溫暖。吊頂造型上采用雙眼皮吊頂,下邊沿嵌入線條燈,增加房屋的層次以及氛圍感。地面采用淺灰色地磚,讓簡約風設計更顯白凈透亮。

▲完工實拍圖 ©源于·云蘭裝潢
由于整體裝修風格顏色以白色為主,所以沙發背景墻采用了木格柵以及硬包搭配來裝飾。這樣做可以增添一些重色使整體空間更加穩重和協調。

▲完工實拍圖 ©源于·云蘭裝潢
客廳空間上跨距并不大所以取消了常規家庭中都有的大茶幾,而是采用了更小巧的小邊幾。在不影響使用的情況下,讓空間開闊些的同時更具有實用性。
▲完工實拍圖 ©源于·云蘭裝潢
主臥床頭背景和客廳沙發背景采用了一樣的材質來裝飾,做到了統一風格以及色系。地板選用淺色系的灰木紋地板,再配上同色系的床來搭配,讓整個空間顯得干凈簡潔。

▲完工實拍圖 ©源于·云蘭裝潢
主臥中的衣柜為了增加空間的層次并沒有采用千變一律的一門到頂格局,而是采用了分段式的衣柜格局。
▲完工實拍圖 ©源于·云蘭裝潢
▲完工實拍圖 ©源于·云蘭裝潢
該套房子廚房空間很大,L型兩面櫥柜,另外冰箱邊上也有操作臺,顏色簡潔明快,材質干凈、好打理,白色的吊頂和白色的櫥柜相呼應,石英石臺面經久耐用,各種廚房電器全部配齊,滿足主人制作各種美食。
▲完工實拍圖 ©源于·云蘭裝潢
餐廳空間與門廳空間連成一體式,而餐桌邊的裝飾柜是利用原墻體厚做的,增加了餐廳儲物以及裝飾空間。
▲完工實拍圖 ©源于·云蘭裝潢
考慮到衛生間的小型物品較多,所以在衛生間沒有做太過復雜的裝飾。瓷磚選用淺色調的,因為衛生間是個大面積場合,太耀眼的顏色就會顯得陰暗潮濕。

▲完工實拍圖 ©源于·云蘭裝潢
▲完工實拍圖 ©源于·云蘭裝潢
陽臺是晾曬衣物的場所,一側洗衣機和水池,一側為儲物柜。顏色以白色為主,儲物柜白色門板和門套相搭配,超大玻璃窗讓陽光柔和的照進來,很舒適、很愜意。
▲完工實拍圖 ©源于·云蘭裝潢
進門玄關柜設計采用上下完全分層設計,增加收納空間的同時讓這塊空間更具設計感。柜子采用免拉手設計,時尚的同時更易清潔,減少家務。
靠譜裝新家熱線
4000-87-3339
掃一掃,有驚喜


您家舒適美麗家 要花多少錢?
3套設計方案免費一鍵獲取您家裝修報價
Copyright ? 2026 YUNLAN-DECORATION. ALL RIGHTS RESERVER