▲完工實拍圖 ©源于·云蘭裝潢
裝修預算:10.8萬 裝修總價:10.8萬
| 裝修主材 | |
|
客餐廳地面磚 |
蒙娜麗莎 |
| 臥室地板 |
菲林格爾 |
| 乳膠漆 | 多樂士 |
|
衛生間墻面 |
馬可波羅 |
客戶三口之家,男業主是做審計,所以一開始對整體裝修都是核算的非常細致,原本的三房兩廳兩衛,后期改了三房一衛多了一個儲物間。客衛原本過大,后期改了干濕分離,加上書房的過道,原本過長的走廊縮短把主臥衣帽間擴大了。女業主非常注重儲物空間,所以在不影響視覺空間的情況下一定要多做儲物,也不希望儲物柜做的很死板,美觀也是很重要的,接下來我們看一下實景照片。
圖 賞
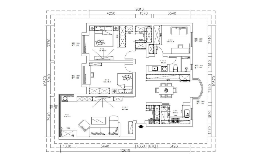
▲原始戶型圖
▲平面布置圖
▲完工實拍圖 ©源于·云蘭裝潢
客廳開間很大,滿面電視柜非但沒有讓空間顯得壓抑,反而看起來很大氣,門口的組合柜,沒有因為都是柜子顯得單調,反而又一次拉長了空間,公共區域滿鋪750*1500的大磚,縫隙更少,整套裝修都以簡潔的線條為主,不過多修飾,反而還原了裝修本身的意義,舒適,減少衛生死角,滿足一家人多口所有儲物需求。
▲完工實拍圖 ©源于·云蘭裝潢
3米多的長沙發,咖色加上原本暖灰的瓷磚,奶咖色的電視柜,顏色統一有層次。
▲完工實拍圖 ©源于·云蘭裝潢
一整面電視柜做到底會覺得很笨重,先以格柵點綴,加長電視柜,讓原本有點偏移的電視背景做到了完全對稱,后期角落可以放上綠植,層次感又一次加滿。
▲完工實拍圖 ©源于·云蘭裝潢
臥室做了轉角衣柜流出來的過道直角通向衣帽間,私密度更好儲物翻了一倍,色調還是以大氣的奶咖色,時尚耐看。

▲完工實拍圖 ©源于·云蘭裝潢
▲完工實拍圖 ©源于·云蘭裝潢
▲完工實拍圖 ©源于·云蘭裝潢
▲完工實拍圖 ©源于·云蘭裝潢
▲完工實拍圖 ©源于·云蘭裝潢
▲完工實拍圖 ©源于·云蘭裝潢
該套房子廚房空間很大,原本L型的櫥柜后期改成了U字型,雙開門的冰箱放在了外面的餐邊柜邊上,廚房灰白色調,下柜打理衛生方便,上柜白色吊柜滿做也不壓抑,還做了一面立柜蒸烤箱取物不用彎腰,下柜和上柜又有很多儲物。
▲完工實拍圖 ©源于·云蘭裝潢
餐廳的餐邊柜加上雙門大冰箱一體合成,灰色柜體板和瓷磚呼應,奶咖色柜門板讓整個家庭溫馨起來,超薄巖板餐桌簡約大氣。
▲完工實拍圖 ©源于·云蘭裝潢

▲完工實拍圖 ©源于·云蘭裝潢
▲完工實拍圖 ©源于·云蘭裝潢
暖灰的色調,干區1米的臺盆柜邊上還可以放一個備用洗衣機,衛生間長虹超白窄邊開門,極簡的線條,600*1200的墻磚顯得衛生間更加大氣。

▲完工實拍圖 ©源于·云蘭裝潢
▲完工實拍圖 ©源于·云蘭裝潢
陽臺落地玻璃,洗衣柜的一面砌了矮墻,方便排水管,整體更美觀。陽臺的承重墻兩邊對應著一面儲物柜,一面洗衣機臺盆組合柜,簡約大氣,功能合理分配。

▲完工實拍圖 ©源于·云蘭裝潢
▲完工實拍圖 ©源于·云蘭裝潢
進門的多功能儲物柜絕對是房子的點睛之筆,沒有單單的做了鞋柜或者衣帽間,這樣做會顯得空間更開闊,而且儲物布局更分配合理。
▲完工實拍圖 ©源于·云蘭裝潢
靠譜裝新家熱線
4000-87-3339
掃一掃,有驚喜


您家舒適美麗家 要花多少錢?
3套設計方案免費一鍵獲取您家裝修報價
Copyright ? 2026 YUNLAN-DECORATION. ALL RIGHTS RESERVER